Airports for X-Plane offers a convenient way to explore airports and their related communication information for the X-Plane flight simulator. It only uses data from the X-Plane flight simulator itself, and is therefore more reliable than the data that comes from real aviation websites. You can search for airports by using the ICAO code, or browse for airports per country and state. The information displayed is categorized by airport details, runway information, airport communication, approach frequencies (ILS and Glidepath details), details of nearby beacons, SIDs, STARs and approach procedures.

city international airport near traffic nearby field airport check-in embassy stolport airliner airfield airport authority landing government port airbase air traffic control road airborne international

Wilmington - Wilmington Air Park

Airport details

CountryUnited States of America
StateOhio
RegionK5
AirspaceIndianapolis Ctr
MunicipalityClinton County
Elevation1077ft (328m)
TimezoneGMT -5
Coordinates39.42792, -83.79211
Magnetic var
Typeland
Available sinceX-Plane v10.40
ICAO codeKILN
IATA codeILN
FAA codeILN

Communication

Wilmington Air Park ATIS124.925
Wilmington Air Park CTAF119.475
Wilmington Air Park Clearance DEL125.600
Wilmington Air Park Ground Control121.600
Wilmington Air Park WILMINGTON Tower119.475
Wilmington Air Park DAYTON Approach/Departure118.850

Approach frequencies

ILS-cat-IIIRW22R110.718.00mi
ILS-cat-IIRW22L109.3518.00mi
ILS-cat-IRW04L110.718.00mi
ILS-cat-IRW04R109.3518.00mi
3° GSRW04L110.718.00mi
3° GSRW22R110.718.00mi
3° GSRW04R109.3518.00mi
3° GSRW22L109.3518.00mi
Nearby Points of Interest:
Doan House
-
Rombach Place
-
Clinton County Courthouse
-
Beam Farm Woodland Archaeological District
-
Cowan Creek Circular Enclosure
-
Hillside Haven Mound
-
Keiter Mound
-
McDonald Farm
-
Jamestown Opera House
-
Crossed Keys Tavern
-
Waynesville Main Street Historic District
-
Bone Stone Graves
-
Bone Mound II
-
Highland County Courthouse
-
Hollencamp House
-
William Burnett House
-
Alexander Conner House
-
Bank of Xenia
-
Millen-Schmidt House
-
Samuel N. Patterson House
-
Berryhill-Morris House
-
Robinson-Pavey House
-
Fayette County Courthouse
-
Jacob Light House
-
Rawlings-Brownell House

Runway info

Runway 4L / 22R  
 length3263m (10705ft)
 bearing45° / 225°
 width46m (150ft)
 surfaceconcrete
 blast zone255m (837ft) / 61m (200ft)
Runway 4R / 22L  
 length2744m (9003ft)
 bearing45° / 225°
 width46m (150ft)
 surfaceconcrete
 blast zone61m (200ft) / 61m (200ft)

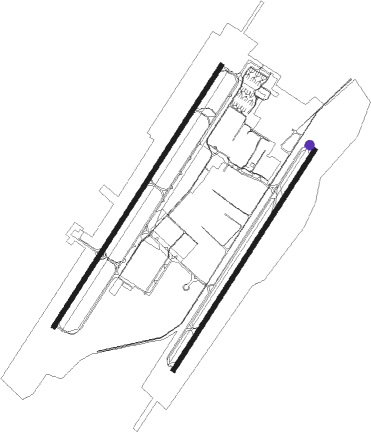
Airport layout - taxiway location B1


Taxiway locations
Parking locations

Nearby beacons

codeidentifierdistbearingfrequency
MXQMIDWEST (WILMINGTON) VOR/DME0.4281°112.90
ILAIRBO (WILMINGTON) NDB4.640°407
HWCUBLA (WILMINGTON) NDB5.9228°299
CSSCOURT HOUSE (WASHINGTON) NDB21.267°414
SGHDME24.6353°113.20
XSFSPRINGFIELD TACAN24.7353°133.80
MWONIDA (MIDDLETOWN) NDB26.2286°223
FFOPATTERSON (DAYTON) TACAN26.4326°115.20
PWFSPORTYS (BATAVIA) NDB28.8230°245
HKFHOOK FIELD (MIDDLETOWN) NDB30.6276°239
ATBRUNY (DAYTON) NDB35.5308°315
BUBOUTN (COLUMBUS) NDB35.956°230
XUBYELLOW BUD (CIRCLEVILLE) VOR38.283°112.50
DDCOBBS (COLUMBUS) NDB40.468°253
EOPWAVERLY NDB42.9107°385
DQNDAYTON VOR/DME45314°114.50
LCKRICKENBACKER (COLUMBUS) TACAN4666°134.20
OSFULER (COLUMBUS) NDB47.443°515
CVGCINCINNATI VORTAC49246°117.30
LCPICKL (COLUMBUS) NDB51.965°376
FLMFALMOUTH VOR/DME52.6214°117
RODROSEWOOD VORTAC52.9344°117.50
YRKYORK VORTAC60.4134°112.80

Instrument approach procedures

runwayairway (heading)route (dist, bearing)
RW04LCHMLE (46°)CHMLE 3000ft
RW04LFEIAT (21°)FEIAT
CHMLE (5mi, 301°) 3000ft
RW04LGOLYI (67°)GOLYI
CHMLE (5mi, 121°) 3000ft
 RNAVCHMLE 3000ft
LYMEE (6mi, 44°) 2800ft
JAYEL (3mi, 44°) 1680ft
KILN (3mi, 51°) 1104ft
(5117mi, 115°) 1218ft
WIZRD (5112mi, 295°) 3000ft
WIZRD (turn)
RW22RAKOVY (194°)AKOVY
WIZRD (5mi, 121°) 3000ft
RW22RODORY (247°)ODORY
WIZRD (5mi, 301°) 3000ft
RW22RWIZRD (223°)WIZRD 3000ft
 RNAVWIZRD 3000ft
MURGE (6mi, 225°) 2400ft
KILN (5mi, 220°) 1132ft
(5117mi, 115°) 1277ft
LYMEE (5121mi, 295°)
TIGRR (12mi, 309°) 3000ft
TIGRR (turn)

Disclaimer

The information on this website is not for real aviation. Use this data with the X-Plane flight simulator only! Data taken with kind consent from X-Plane 12 source code and data files. Content is subject to change without notice.