Airports for X-Plane offers a convenient way to explore airports and their related communication information for the X-Plane flight simulator. It only uses data from the X-Plane flight simulator itself, and is therefore more reliable than the data that comes from real aviation websites. You can search for airports by using the ICAO code, or browse for airports per country and state. The information displayed is categorized by airport details, runway information, airport communication, approach frequencies (ILS and Glidepath details), details of nearby beacons, SIDs, STARs and approach procedures.

port airport authority aviation stolport capital government control tower arrival faa aircraft carrier nearby airport passengers jetliner international air traffic control airplane airdock flight attendant landing

Ulyanovsk - Vostochny

Airport details

CountryRussian Federation
StateUlyanovsk Oblast
RegionUW
AirspaceSamara Ctr
MunicipalityМирновское сельское поселение
Elevation250ft (76m)
TimezoneGMT +4
Coordinates54.41040, 48.79829
Magnetic var
Typeland
Available sinceX-Plane v10.40
ICAO codeUWLW
IATA codeULY
FAA coden/a

Communication

VOSTOCHNY Tower124.200
VOSTOCHNY ULYANOVSK Approach127.300
VOSTOCHNY KRUG126.100

Approach frequencies

ILS-cat-IRW02110.118.00mi
ILS-cat-IRW20110.118.00mi
2.6° GSRW02110.118.00mi
2.6° GSRW20110.118.00mi
Nearby Points of Interest:
Noble Assembly Building, Ulyanovsk
-
Undorsky Mineral Spring

Runway info

Runway 02 / 20
 length5016m (16457ft)
 bearing46° / 226°
 width105m (344ft)
 surfaceconcrete
 blast zone61m (200ft) / 61m (200ft)

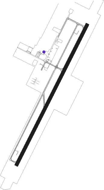
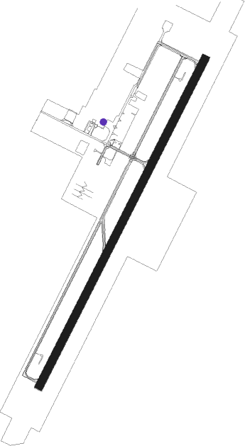
Airport layout - parking location In


Taxiway locations
Parking locations

Nearby beacons

codeidentifierdistbearingfrequency
UWSULYANOVSK VOR/DME0.6127°113.70
WVOSTOCHNY (ULYANOVSK) NDB1.562°830
UVOSTOCHNY (ULYANOVSK) NDB2.2213°830
WNVOSTOCHNY (ULYANOVSK) NDB3.254°408
ULVOSTOCHNY (ULYANOVSK) NDB3.8219°408
LSBARATAYEVKA (ULYANOVSK) NDB19.3260°332
LBARATAYEVKA (ULYANOVSK) NDB20.6258°680
BMKULYANOVSK-BARATAYEVKA VOR/DME21.9256°113.40
MBARATAYEVKA (ULYANOVSK) NDB22.8255°680
DWNIKOLSKOYE NDB25.8134°995
NKDME-ILS25.9134°108.10

Departure and arrival routes

Transition altitude3205ft
SID end pointsdistanceoutbound heading
RW02
 ROMT2D36mi68°
 RUBE2D39mi174°
 NEPN2D54mi233°
 TERD2D69mi265°
 MOKE2D33mi311°
RW20
 ROMT3D36mi68°
 RUBE3D39mi174°
 NEPN3D54mi233°
 TERD3D69mi265°
 MOKE3D33mi311°

STAR starting pointsdistanceinbound heading
RW02
 EREL2A47.257°
 MEZE2A54.5107°
 MOKE2A33.0131°
 AGUT2A25.1177°
 ODRU2A, ODRU2B36.0273°
 REDM2C, REDM2B, REDM2A29.5330°
RW20
 EREL4A47.257°
 TERD4A68.685°
 DOGI4A63.998°
 MEZE4A54.5107°
 MOKE4A33.0131°
 AGUT4A25.1177°
 ODRU4A36.0273°
 REDM4A, REDM4B29.5330°

Disclaimer

The information on this website is not for real aviation. Use this data with the X-Plane flight simulator only! Data taken with kind consent from X-Plane 12 source code and data files. Content is subject to change without notice.