Airports for X-Plane offers a convenient way to explore airports and their related communication information for the X-Plane flight simulator. It only uses data from the X-Plane flight simulator itself, and is therefore more reliable than the data that comes from real aviation websites. You can search for airports by using the ICAO code, or browse for airports per country and state. The information displayed is categorized by airport details, runway information, airport communication, approach frequencies (ILS and Glidepath details), details of nearby beacons, SIDs, STARs and approach procedures.

train station airport apron runway public transport arrival government frankfurt airport airport check-in air terminal local government automated airport weather station stol runway lighting immigration nearby plane jetliner near ferry consulate

Qingdao - Qingdao Jiaodong Intl

Airport details

CountryChina
StateShandong
RegionZS
AirspaceShanghai Ctr
MunicipalityQingdao City
Elevation28ft (9m)
TimezoneGMT +8
Coordinates36.36475, 120.08683
Magnetic var
Typeland
Available sinceX-Plane v10.40
ICAO codeXZ001I
IATA codeTAO
FAA coden/a

Communication

Qingdao Jiaodong Intl ATIS127.200
Qingdao Jiaodong Intl Qingdao Delivery121.950
Qingdao Jiaodong Intl Qingdao Ground (East)121.650
Qingdao Jiaodong Intl Qingdao Apron (West)121.875
Qingdao Jiaodong Intl Qingdao Ground (West)121.750
Qingdao Jiaodong Intl Operational Control132.000
Qingdao Jiaodong Intl Operational Control128.850
Qingdao Jiaodong Intl Qingdao Apron (East)121.600
Qingdao Jiaodong Intl Qingdao Tower (East)118.700
Qingdao Jiaodong Intl Qingdao Tower (West)118.275
Qingdao Jiaodong Intl Qingdao Approach 04119.475
Qingdao Jiaodong Intl Qingdao Approach 05120.250
Qingdao Jiaodong Intl Qingdao Approach 01119.400
Qingdao Jiaodong Intl Qingdao Approach 02121.150
Qingdao Jiaodong Intl Qingdao Approach 03119.775

Runway info

Runway 16 / 34  
 length3603m (11821ft)
 bearing159° / 339°
 width60m (197ft)
 surfaceconcrete
 blast zone121m (397ft) / 116m (381ft)
Runway 17 / 35  
 length3603m (11821ft)
 bearing159° / 339°
 width45m (148ft)
 surfaceconcrete
 blast zone119m (390ft) / 119m (390ft)

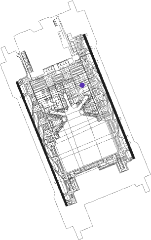
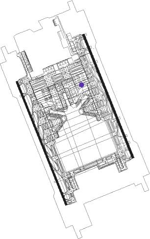
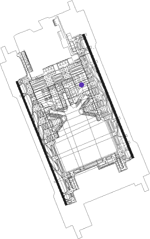
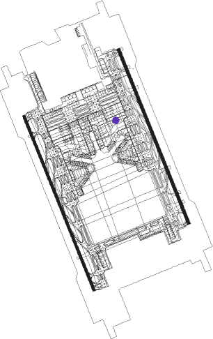
Airport layout - parking location 403


Taxiway locations
Parking locations

Nearby beacons

codeidentifierdistbearingfrequency
JDGJIAODONG VOR/DME1.2304°114.45
JDWJIAOBEI VOR/DME5.7252°116.85
JDESHANGMA VOR/DME9.2114°116.25
TAOQINGDAO VOR/DME14.4105°117.50
YOGAOMI NDB19.7280°443
XDXXUEJIADAO VOR/DME25.2152°110.40
FDLAIYANG NDB42.944°298
WFGWEIFANG VOR/DME49.6286°116.60

Disclaimer

The information on this website is not for real aviation. Use this data with the X-Plane flight simulator only! Data taken with kind consent from X-Plane 12 source code and data files. Content is subject to change without notice.