Airports for X-Plane offers a convenient way to explore airports and their related communication information for the X-Plane flight simulator. It only uses data from the X-Plane flight simulator itself, and is therefore more reliable than the data that comes from real aviation websites. You can search for airports by using the ICAO code, or browse for airports per country and state. The information displayed is categorized by airport details, runway information, airport communication, approach frequencies (ILS and Glidepath details), details of nearby beacons, SIDs, STARs and approach procedures.

bus near immigration local government flights aerodrome jet hangar heliport air traffic control road pilot taxiway outskirts airport runway metro aircraft carrier airport apron international

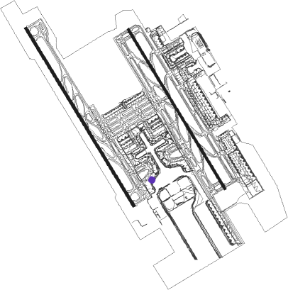
Shenzhen - Shenzhen Bao'an Intl

Airport details

CountryChina
StateGuangdong Province
RegionZG
AirspaceGuangzhou Ctr
MunicipalityShenzhen
Elevation13ft (4m)
TimezoneGMT +8
Coordinates22.63833, 113.81167
Magnetic var
Typeland
Available sinceX-Plane v10.40
ICAO codeZGSZ
IATA codeSZX
FAA coden/a

Communication

Shenzhen Bao'an Intl ATIS Arr126.850
Shenzhen Bao'an Intl ATIS Dep127.450
Shenzhen Bao'an Intl CLD121.950
Shenzhen Bao'an Intl Ground Control West121.800
Shenzhen Bao'an Intl Ground Control East121.650
Shenzhen Bao'an Intl Tower 15/33118.450
Shenzhen Bao'an Intl Tower 16/34130.350
Shenzhen Bao'an Intl ZHUHAI Approach120.350
Shenzhen Bao'an Intl ZHUHAI Approach124.250

Approach frequencies

ILS-cat-IRW34109.118.00mi
ILS-cat-IRW33110.718.00mi
ILS-cat-IRW15111.318.00mi
ILS-cat-IRW16108.118.00mi
3° GSRW34109.118.00mi
3° GSRW33110.718.00mi
3° GSRW15111.318.00mi
3° GSRW16108.118.00mi
Nearby Points of Interest:
Weiyuan Fort
-
Fortified Structure at Ha Pak Nai
-
Tat Tak Communal Hall
-
Yu Kiu Ancestral Hall
-
Tin Hau Temple, Fung Chi Tsuen
-
Cheung Ancestral Hall, Shan Ha Tsuen
-
Pun Uk
-
Tang Tsing Lok Ancestral Hall
-
Cheung Chun Yuen
-
Tang Kwong U Ancestral Hall
-
Lik Wing Tong Study Hall
-
Bin Mo Bridge
-
Chou Wong Yi Kung Study Hall
-
Fanling Lodge
-
Leung Ancestral Hall, Yuen Kong Tsuen
-
Pat Heung Temple
-
Residence of Ip Ting-zi
-
Sing Lei Hap Gei Lime Kiln Factory
-
301 & 303 Castle Peak Road
-
Garden Centre
-
Mei Ho House
-
269-271 Yu Chau Street
-
58 Pei Ho Street
-
117-125 Nam Cheong Street

Runway info

Runway 16 / 34  
 length3811m (12503ft)
 bearing151° / 331°
 width50m (164ft)
 surfaceconcrete
 blast zone120m (394ft) / 120m (394ft)
Runway 15 / 33  
 length3416m (11207ft)
 bearing151° / 331°
 width45m (148ft)
 surfaceconcrete
 blast zone60m (197ft) / 60m (197ft)

Nearby beacons

codeidentifierdistbearingfrequency
SHKSHEKOU VOR/DME9.9147°115.90
GLNGUANLAN VOR/DME12.972°112
NLGNANLANG VOR/DME15.2247°117.70
LKCLUNG KWU CHAU VOR/DME16164°113.20
SMTSIU MO TO VOR/DME20.3150°114.80
SLSHA LO WAN (HONG KONG) NDB21.5165°268
ZAOJIUZHOU VOR/DME25.9207°117.20
SCSTONECUTTERS (HONG KONG) NDB26.1135°236
SHLSHILONG VOR/DME27.3115.70
CHCHAU DME27.9152°112.30
RWHONG KONG NDB28.1129°377
CCHONG KONG CHEUNG NDB28.8154°360
ZUHLIANSHENGWEI VOR/DME31.5220°116.70
MCUMACAO VOR/DME32.4203°116.40
TDTUNG LUNG VOR/DME35.5129°116.10
THTATHONG POINT VOR_DME VOR/DME35.7130°115.50
CENCENCUN VOR/DME37.7322°114.60
POUPINGZHOU VOR/DME41.4302°114.10
FOGUANGZHOU NDB43.5311°410
USANZAO NDB46.5215°272
UJGAOLAN NDB51.8216°204
CONCONGHUA VOR/DME58.3347°113

Departure and arrival routes

Transition altitude8858ft
Transition level11811ft
SID end pointsdistanceoutbound heading
RW15
 IDU1WD, IDU9WD17mi28°
 SLS9WD, SLS1WD28mi56°
 OVG9WD, OVG2WD, OVG1WD53mi81°
 LKC9WD, LKC1WD16mi164°
 SIE1WD, SIE3WD, SIE9WD42mi202°
 TOM3WD, TOM9WD, TOM2WD, TOM1WD84mi238°
 MIP9WD, MIP1WD17mi346°
RW16
 IDU1XD, IDU9XD17mi28°
 SLS1XD, SLS9XD28mi56°
 OVG9XD, OVG1XD, OVG2XD53mi81°
 LKC1XD, LKC9XD16mi164°
 SIE9XD, SIE1XD, SIE3XD42mi202°
 TOM9XD, TOM3XD, TOM2XD, TOM1XD84mi238°
 MIP9XD, MIP8XD, MIP1XD17mi346°
RW33
 IDU1YD, IDU9YD17mi28°
 SLS9YD, SLS1YD28mi56°
 OVG9YD, OVG8YD, OVG1YD53mi81°
 LKC9YD, LKC1YD16mi164°
 SIE1YD, SIE3YD, SIE9YD42mi202°
 TOM3YD, TOM9YD, TOM2YD, TOM1YD84mi238°
 MIP9YD, MIP1YD17mi346°
RW34
 IDU1ZD, IDU9ZD17mi28°
 SLS9ZD, SLS1ZD28mi56°
 OVG9ZD, OVG8ZD, OVG1ZD53mi81°
 LKC9ZD, LKC1ZD16mi164°
 SIE1ZD, SIE3ZD, SIE9ZD42mi202°
 TOM3ZD, TOM2ZD, TOM1ZD, TOM9ZD84mi238°
 MIP1ZD, MIP9ZD17mi346°

STAR starting pointsdistanceinbound heading
RW15
 LAN1XA, LAN2XA, LAN8XA, LAN9XA74.837°
 LOV9XA, LOV8XA, LOV2XA, LOV1XA87.354°
 SAR9XA, SAR3XA, SAR2XA, SAR1XA41.4122°
 SAR8XA23.3127°
 OVG9XA, OVG1XA52.7261°
 BEK1XA, BEK9XA18.7286°
RW16
 LAN9XA, LAN8XA, LAN2XA, LAN1XA74.837°
 LOV1XA, LOV2XA, LOV8XA, LOV9XA87.354°
 SAR9XA, SAR3XA, SAR2XA, SAR1XA41.4122°
 SAR8XA23.3127°
 OVG9XA, OVG1XA52.7261°
 BEK1XA, BEK9XA18.7286°
RW33
 LAN9ZA, LAN8ZA, LAN3ZA, LAN2ZA, LAN1ZA, LAN0ZA74.837°
 LOV8ZA, LOV3ZA, LOV2ZA, LOV1ZA, LOV0ZA, LOV9ZA87.354°
 SAR1ZA, SAR2ZA, SAR9ZA41.4122°
 SAR8ZA23.3127°
 OVG1ZA, OVG9ZA, OVG2ZA52.7261°
 BEK1ZA, BEK2ZA, BEK9ZA18.7286°
RW34
 LAN3ZA, LAN2ZA, LAN1ZA, LAN0ZA, LAN9ZA, LAN8ZA74.837°
 LOV3ZA, LOV1ZA, LOV8ZA, LOV9ZA, LOV0ZA, LOV2ZA87.354°
 SAR9ZA, SAR2ZA, SAR1ZA41.4122°
 SAR8ZA23.3127°
 OVG1ZA, OVG2ZA, OVG9ZA52.7261°
 BEK2ZA, BEK9ZA, BEK1ZA18.7286°

Holding patterns

STAR namehold attypeturnheading*altitudelegspeed limit
BEK1XAGLNNDBright86 (266)°> 4930ft1.0min timed205
BEK1ZAGLNNDBright86 (266)°> 4930ft1.0min timed205
BEK9XAGLNNDBright86 (266)°> 4930ft1.0min timed205
LAN1XANLGNDBleft350 (170)°> 3940ft1.0min timed205
LAN1ZANLGNDBleft350 (170)°> 3940ft1.0min timed205
LAN2XANLGNDBleft350 (170)°> 3940ft1.0min timed205
LAN3ZANLGNDBleft350 (170)°> 3940ft1.0min timed205
LAN8XAGURINVHFright257 (77)°> 8860ft1.0min timedICAO rules
LAN8ZAGURINVHFright257 (77)°> 8860ft1.0min timedICAO rules
LAN9XANLGNDBleft350 (170)°> 3940ft1.0min timed205
LOV1XANLGNDBleft350 (170)°> 3940ft1.0min timed205
LOV1ZANLGNDBleft350 (170)°> 3940ft1.0min timed205
LOV2XANLGNDBleft350 (170)°> 3940ft1.0min timed205
LOV3ZANLGNDBleft350 (170)°> 3940ft1.0min timed205
LOV8XAGURINVHFright257 (77)°> 8860ft1.0min timedICAO rules
LOV8ZAGURINVHFright257 (77)°> 8860ft1.0min timedICAO rules
LOV9XANLGNDBleft350 (170)°> 3940ft1.0min timed205
OVG1XAGLNNDBright86 (266)°> 4930ft1.0min timed205
OVG1ZAGLNNDBright86 (266)°> 4930ft1.0min timed205
OVG9XAGLNNDBright86 (266)°> 4930ft1.0min timed205
OVG9ZAGLNNDBright86 (266)°> 4930ft1.0min timed205
SAR1XANLGNDBleft350 (170)°> 3940ft1.0min timed205
SAR1ZANLGNDBleft350 (170)°> 3940ft1.0min timed205
SAR2ZANLGNDBleft350 (170)°> 3940ft1.0min timed205
SAR3XANLGNDBleft350 (170)°> 3940ft1.0min timed205
SAR9ZANLGNDBleft350 (170)°> 3940ft1.0min timed205
*) magnetic outbound (inbound) holding course

Disclaimer

The information on this website is not for real aviation. Use this data with the X-Plane flight simulator only! Data taken with kind consent from X-Plane 12 source code and data files. Content is subject to change without notice.